Dev Bayrak Direkleri

-
18
- 100 mt arası Galvanizli Poligon veya Paslanmaz Poligon Bayrak Direkleri.
-
Sonsuz döner tepe sistem.
-
Asansörlü veya el
tahrikli bayrak indirme sistemi.
-
Standard 160 km/saat
rüzgar hızına göre statik hesaplar.
-
Temel ve montaj hizmeti.
Poligonal modüllerin
sıkı geçmesi
veya flanşlı birleşimi ile oluşturulan tek parça
direk.
Ankrajlı temel montajı
için taban flanşı mevcut.
Opsiyonel Uçak ikaz lambası.
RESİMLERİ BÜYÜLTMEK İÇİN REİSMLERİN ÜSTÜNE TIKLAYINIZ

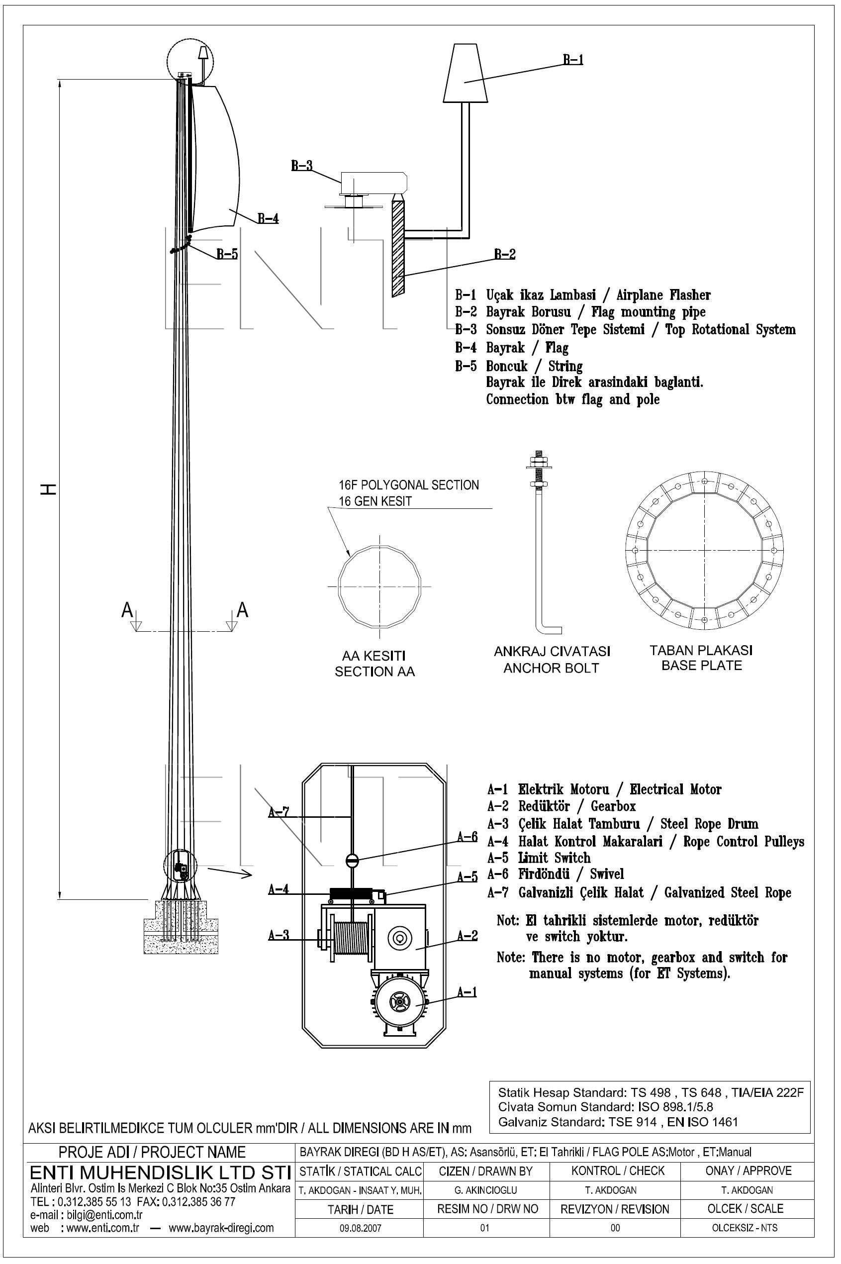
Dev BD teknik
resim. 55 mt Samsun
40 mt Adıyaman 30 mt Niğde
40 mt Sarp sınır kapısı
YURTDIŞI
İMALAT VE MONTAJLAR

SURİYE
LİBYA
AZERBAYCAN
Sonsuz Döner Tepe
Sistemi
|
Sonsuz Döner Tepe
Sistem
|
|
Bayrağın direk etrafında dolanmadan dönmesini sağlayan sistem.
Bayrak Tepesine yerleştirilen rulman sistemi ve makaralar
yardımı ile bayrak rüzgarın estiği yöne göre bağlı olduğu
halatla birlikte dönebilir. Halatın bir ucu bayrak gövdesinin
içinden aşağıya inerek, bayrak direğinin tabanındaki el tahrik
ünitesine veya elektrikli motor sistemine bağlıdır (kucuk
direklerde koc boynuzuna baglıdır). Halatın diğer ucu direğin
tepesinden çıkarak bayrağı taşır ve hemen bayrağın alt hizasında
dönme hareketi yapabilecek şekilde direğe bağlanır. Böylece
direk etrafında, bayrak hizası hariç halat görünmez aynı zamanda
bayrak rüzgara göre 360 derece dönebilir. İsteğe göre büyük
direklerde direğin tepesine uçak ikaz lambası ve paratoner
konulabilir.
|
|
Bayrağın direkten ayrılmasını engelleyen ağırlıklı boncuktan tesbih.
Otomatik Kumanda Panosu ve
Asansör sistem.
Sonsuz döner tepe sistem (büyük) ve uçak ikaz lambası.
- Teknik resime bakınız.
BAYRAK
DİREĞİ ÇEVRE DÜZENLEME VE AYDINLATMA ÇALIŞMALARI

Bayrak Direği Aydınlatma -
Rotasyonel / Odaklı Projektör
Projektörler için otonatik pano

Bayrak direği Çevre alan Çim
çalışmaları

Bayrak
Direği Çevresi Peyzaj Çalışmaları
Teknik Resim
ve projelendirme için bize ulaşın.
|